Our Projects
Current Projects
JSU Charles Moore Replacement Plaza
Jackson State University
Jackson, MS
Architect – Eley Guild Hardy Architects - Jackson, P.A.
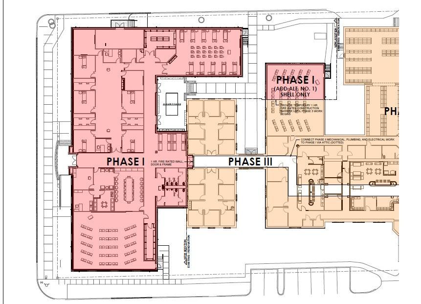
MLEOTA Campus Improvements
Mississippi Law Enforcement Training Academy
Pearl, MS
Architect - Burris / Wagnon Architects, P.A., Jackson, MS
Anti-Ligature Compliance Renovations
Mississippi State Hospital
Pearl, MS
Architect - Mark S. Vaughan Architect PLLC
Forrest Municipal School District Renovations
Forrest, MS
Architect - Dale Partners Architects, P.A.
Some of the projects we've
completed over the years.
Co-Lin Simpson County Center
25,000 sqft Addition to the Co-Lin Simpson County Campus
Copiah-Lincoln Community College
Mendenhall, MS
Archtiect –
Burris / Wagnon Architects, P.A., Jackson, MS
Richland Lower Elementary School Additions & Renovations
Renovation of Two Existing Elementary School Buildings & New Classroom Addition
Rankin County School District
Brandon, MS
Architect – Pryor-Morrow PC
Richland Upper Elementary School Additions & Renovations
Renovation of Five Existing Elementary School Buildings & New Classroom Addition
Rankin County School District
Brandon, MS
Architect – Pryor-Morrow PC
Camp McCain Building S-213
Renovation of Interior & Exterior of Military Office & Shop Facility
MS Military Department
Grenada, MS
Architect – Duvall Decker Architects, P.A.
Dormitory Renovations
MS Law Enforcement Officers Training Academy
MS Bureau of Buildings
Pearl, MS
Architect – Burris/Wagnon Architects, P.A.
First Independent Methodist Church – Madison, MS
A 6,800 sq/ft church building in Madison, MS. Stick framed, scissor trusses spanning 68 feet at its widest point, brick veneer, stucco gable, aluminum storefront framed 5/8” insulated glass windows with stucco trim, 21 foot stucco arch at entrance, fiberglass steeple with cross at 51 feet high. Acoustical ceiling tile in classrooms, 24 feet vaulted sheetrock, smooth finished ceiling in sanctuary, stained concrete flooring in classrooms, offices and restrooms, carpet in sanctuary, and nursery, and accordion partition walls. Fire protection which includes sprinkler heads in attic space, 23 tons of electric heat, sound booth, ceiling mounted speakers, microphones, phone and data connections. Curb and butter, sidewalks and asphalt paving with 60 car capacity lot.
Over 18,000 yards of material was excavated and relocated on site. Fill material came from 2 acre retention pond used to catch runoff water from parking lot.







